Skip To Content

768 W 24TH St S

Ogden, UT 84401
  • $710,000
  • STATUS: Active
  • ON SITE: 57 Days
  • MLS #: 2110604
UPDATED: 31 min ago
$710,000
  • 0
    BEDS
  • 1.03
    ACRES
  • 0
    BATHS
  • 0
    1/2 BATHS
Type:
Shared Interest
County:

School Information

Elementary School:
Middle School:
High School:
School District:

Description

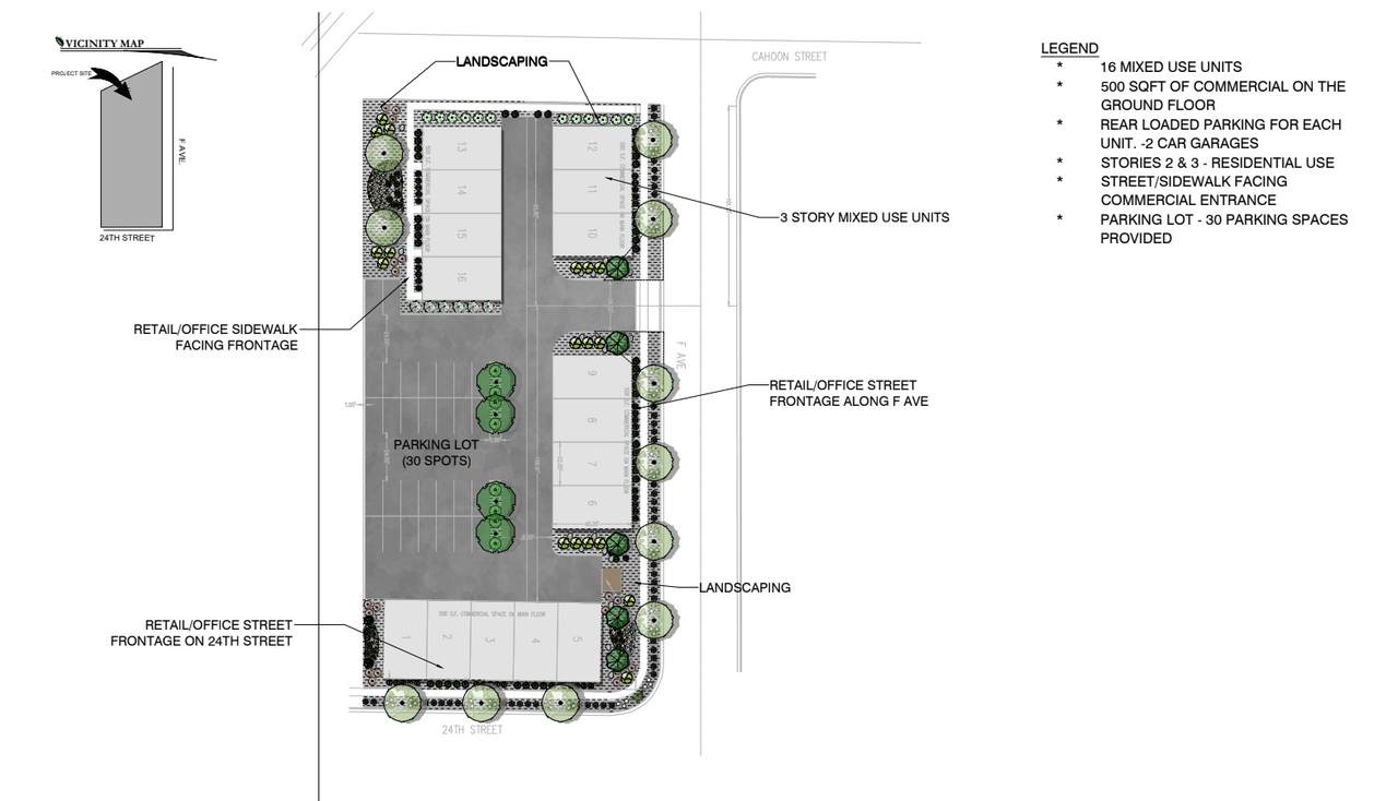
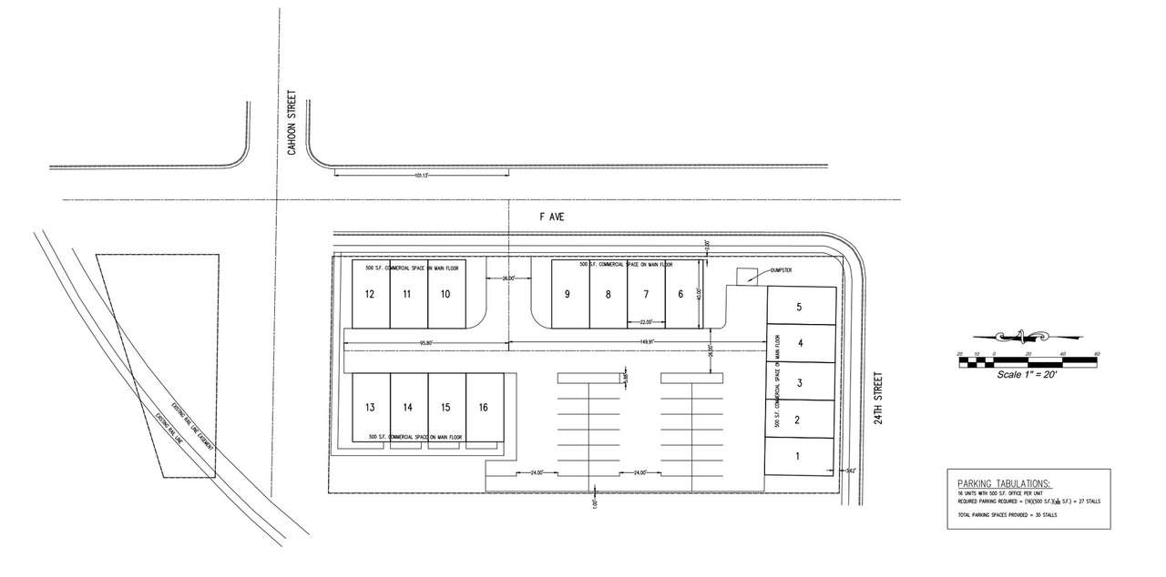
*Big Price Drop* 24th Street Investor/Builder/Developer Opportunity Rental Home + 1.03 Acres Motivated seller, priced for quick sale. Property Details: 1.03-acre lot with single-family home (vacant, proven rental history). Rezone approved by planning commission for 16 mixed-use townhomes (~1,700 sq. ft. residential + 500 sq. ft. commercial, each with 2-car garages). Potential for Phase 2 expansion with additional acreage via vacated city road. Comparable sold new built townhomes are between $475K-$525K. Land value if fully entitled would be $1,100,000. Selling at rezone with plenty of meat on the bone for a quick exit and lots of upside for the new owner. Opportunity: Prime location near new upcoming I-15 interchange, Weber State University, and downtown Ogden. Ogden City redevelopment driving demand for housing and mixed-use projects. Immediate options to lease home for income or use during entitlement/build-out. Not your typical rezone. Planning commission approvals secured include: rezone, development agreement, and code amendment. Ideal for 1031 exchange buyer with immediate utility and strong future upside. Amazing opportunity for an investor, developer, or builder. Buy now, cashflow, build next, cash out later with multiple exit strategies. Full project data room available upon request. All parcel's included in the sale are: 140200004, 1410200002, 140200001, 14020003 Square footage figures are provided as a courtesy estimate only and were obtained from County Assessor. Buyer is advised to obtain an independent measurement.

Monthly Payment Calculator



Based on information from the Wasatch Front Regional Multiple Listing Service, Inc. as of 2025-11-07T18:42:43.21. All data, including all measurements and calculations of area, is obtained from various sources and has not been, and will not be, verified by broker or the MLS. All information should be independently reviewed and verified for accuracy. Properties may or may not be listed by the office/agent presenting the information.The information provided is for consumers' personal, non-commercial use and may not be used for any purpose other than to identify prospective properties consumers may be interested in purchasing. Information deemed reliable but not guaranteed accurate. Buyer to verify all information.
www.utahrealestate.luxury/homes/167784251
Print Image

768 W 24TH St S Ogden, UT 84401

  • Price: $710,000
  • Status: Active
  • On Site: 57 Days
  • Updated: 31 min ago
  • MLS #: 2110604
0
Beds
0
Baths
0
½ Baths
1.03
Acres
Neighborhood:
Brooklyn Addition / 24Th Street Development
County:
Weber
Area:
Ogdn; W Hvn; Ter; Rvrdl
Elementary School:
Odyssey
Middle School:
Mound Fort
High School:
Ben Lomond
School District:
Ogden
Property Description
*Big Price Drop* 24th Street Investor/Builder/Developer Opportunity Rental Home + 1.03 Acres Motivated seller, priced for quick sale. Property Details: 1.03-acre lot with single-family home (vacant, proven rental history). Rezone approved by planning commission for 16 mixed-use townhomes (~1,700 sq. ft. residential + 500 sq. ft. commercial, each with 2-car garages). Potential for Phase 2 expansion with additional acreage via vacated city road. Comparable sold new built townhomes are between $475K-$525K. Land value if fully entitled would be $1,100,000. Selling at rezone with plenty of meat on the bone for a quick exit and lots of upside for the new owner. Opportunity: Prime location near new upcoming I-15 interchange, Weber State University, and downtown Ogden. Ogden City redevelopment driving demand for housing and mixed-use projects. Immediate options to lease home for income or use during entitlement/build-out. Not your typical rezone. Planning commission approvals secured include: rezone, development agreement, and code amendment. Ideal for 1031 exchange buyer with immediate utility and strong future upside. Amazing opportunity for an investor, developer, or builder. Buy now, cashflow, build next, cash out later with multiple exit strategies. Full project data room available upon request. All parcel's included in the sale are: 140200004, 1410200002, 140200001, 14020003 Square footage figures are provided as a courtesy estimate only and were obtained from County Assessor. Buyer is advised to obtain an independent measurement.
Exterior Features

Attached Garage YN No Carport YN No Covered Spaces 0 Frontage Length 150.0 Garage YN No Horse Property YN No Lot Features Additional Land AvailableCorner LotCurb & GutterView: MountainTerrain: Flat Lot Size Dimensions 150.0x450.0x150.0 Mobile Length 0 Mobile Width 0 Open Parking YN No Parking Total 0 Pool Private YN No Spa YN No Topography Terrain: Flat View YN Yes Waterfront YN No

Interior Features

Bathrooms Partial 0 Cooling YN No Fireplace YN No Heating YN False Rooms Total 0

Property Features

Association YN No Cross Street 2400 Current Use ResidentialCommercialMulti-Family Direction Faces South Lease Considered YN No Listing Terms CashConventionalExchangeSeller Finance New Construction YN No Ownership Fractional Ownership Property Attached YN No Property Condition Blt./Standing Property Sub Type Residential Senior Community YN No Sewer Sewer: Connected Tax Annual Amount 3000 Utilities Natural Gas ConnectedElectricity ConnectedSewer Connected Zoning Single-FamilyMulti-FamilyCommercial Zoning Description R15 MU

Listing provided courtesy of Equity Real Estate (Premier Elite): 385-321-0570. Information deemed reliable but not guaranteed accurate. Buyer to verify all information. © 2025 Wasatch Front Regional Multiple Listing Service, Inc., All Rights Reserved.


Based on information from the Wasatch Front Regional Multiple Listing Service, Inc. as of 2025-11-07T18:42:43.21. All data, including all measurements and calculations of area, is obtained from various sources and has not been, and will not be, verified by broker or the MLS. All information should be independently reviewed and verified for accuracy. Properties may or may not be listed by the office/agent presenting the information.The information provided is for consumers' personal, non-commercial use and may not be used for any purpose other than to identify prospective properties consumers may be interested in purchasing. Information deemed reliable but not guaranteed accurate. Buyer to verify all information.
 
https://bt-photos.global.ssl.fastly.net/wasatch/1280_boomver_1_2110604-1.jpg https://bt-photos.global.ssl.fastly.net/wasatch/1280_boomver_1_2110604-1.jpg https://bt-photos.global.ssl.fastly.net/wasatch/1280_boomver_1_2110604-1.jpg
Logo
Heidi Kapcsos with eXp Realty
619 South Bluff, Tower 1, Suite 202
St George UT, 84770